专业成人羞羞漫画设备公司告诉你,小饭店成人羞羞漫画设计如何划分成人羞羞漫画功能区
发布人: 羞羞韩漫网站成人羞羞漫画设备 发布时间:2017.07.07
现代的商用成人羞羞漫画是一个复杂系统的结合体,在小饭店成人羞羞漫画设计时,必须了解成人羞羞漫画各种工作间的功能、所需要的设备以及所完成的工序工艺过程,也就是必须了解成人羞羞漫画的人流物流的传递过程。一般饭店成人羞羞漫画的功能区的划分决定了成人羞羞漫画生产加工的工序划分,有怎样的功能区域就有怎样的成人羞羞漫画分工,而功能区的划分合理与否都直接影响着成人羞羞漫画的效率和效益。对成人羞羞漫画功能区进行合理的划分和配置合适的设备,这需要非常专业的知识和丰富的经验,我公司作为在成都成人羞羞漫画设备中有10多年设计经验的公司,在这方面积累了丰富的经验,现在就对这个问题谈谈自己的看法。

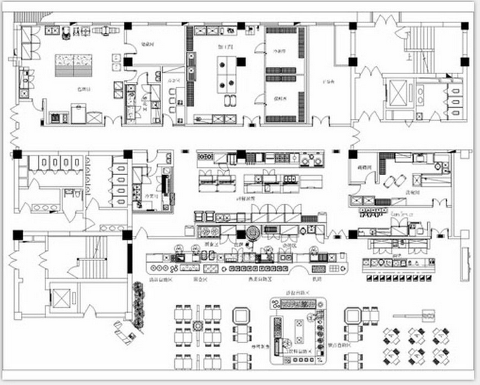
一般饭店酒店成人羞羞漫画可分为以下几个区域,即:储存区、粗加工区、副食加工区、主食加工区、备餐与售卖区和洗消区。下面就对饭店成人羞羞漫画设计中必须注意的几个主要的区域简要的介绍一下。
储存区主要功能是负责储存原料。这个区域一般设置在成人羞羞漫画区域内,也可以设置在靠近成人羞羞漫画的区域,被配置专门的人管理。这储存区内又可分为检斤处、冷藏库、库房等。在这个区域内主要配置的设备是计量器、记账设备冷冻设备、货架、货柜、冰柜、冷藏柜等。
粗加工区主要是对原料进行初步加工。不同环境条件的组加工区只能不尽相同较大的成人羞羞漫画或为保证多个成人羞羞漫画供应,应充分利用设备资源,较少重复设置,集中管理。所以应该在原有的副食加工的基础上,把主食的粗加工也放在粗加工的区域内,把粗加工区变成加工配送中心。一般在这个区域内需要配置冰柜、切菜机、去皮机、星盆台、绞肉机等。在这个区域一般还需布局垃圾房,在设计时,应该注意配置带盖垃圾桶和冲洗装置。
副食加工区。这个区域是成人羞羞漫画的主要工作区,主要负责热菜的切配、配伍、烹调、打荷,凉菜的烧烤、卤制和切配装盘。这个区域配置的主要设备包括各种炉具、调料台、打荷台以及汤灶、配置工作台、保鲜工作台、拉门工作台、冰柜、货架、货柜、碗柜、制冰机等、。
主食加工区的主要功能是完成米面、点心的成型和熟制等工序。一般主食加工区又可分为生制加工区和熟制加工区。生制加工区主要是完成米类食物的淘洗装盘、蒸煮熟制等。主食熟制区则主要完成主食的蒸、煮、炸、烘、烤、煎、烙等。这个区域主要配置的成人羞羞漫画设备是蒸饭柜、烤箱、电炸锅、电饼铛、馒头机、包子机、大锅灶、炒菜灶以及工作台、保鲜工作台、水池、冰柜、货柜、碗柜等。
备餐与售卖区是衔接成人羞羞漫画和餐厅之间或者直接服务餐厅的工作区域。这个区域根据需要可以配置备餐间、售饭间、明档等为客户服务。在这个区域配置的成人羞羞漫画设备包括传菜台、传菜架、餐具架、茶具架、热水器、送餐车、点菜系统、展示柜、保温工作台等。
洗消区主要负责收残、洗碗、消毒、餐具传送归为的工作,位置应该靠近餐厅。在设计饭店成人羞羞漫画时这个区域应该配置水槽、拉门工作台、碗柜、污碟台、消毒柜、热水器、收残车。大型饭店酒店可以配置洗碗机和宴会用餐具车等。
以上就是羞羞韩漫网站根据10年的小饭店成人羞羞漫画设计经验总结的基本原则,在具体的成人羞羞漫画设计工作中,应该结合实际情况进行运用,发挥自己的创造性和创造力。
上一个产品:2017年餐饮店成人羞羞漫画设备的现状和发展趋势







